
giovedi 16 ottobre 2025
progettista
Enrico Rossini
con
Cristina Boselli
Giovanna Fontanesi
dati dimensionali
area del lotto totale mq.1.072
localizzazione
Castel d’Ario, Mantova, Italia.
descrizione:
Il progetto preliminare di recupero della torre d’ingresso al recinto fortificato di Castel d’Ario, in Provincia di Mantova, è uno studio che ha indagato con tecniche proprie del restauro e delle modalità del recupero architettonico, un manufatto esistente, molto antico, mediante un approccio scientifico e metodologico al delicato tema degli interventi su edifici di elevato valore monumentale, sociale e storico sia per la cittadinanza locale sia per la nostra comunità.
Infatti il progetto si sviluppa a seguito di una approfondita ricerca storica documentata, prodotta e redatta per capire ed approfondire l’evoluzione storica dello stratificato complesso che si articola in molte porzioni sovrapposte e di successiva edificazione.
Il recinto fortificato, o “castello” come chiamato dalla comunità locale, è documentato in una prima rappresentazione cartografica dall’anno 1557, e poi nel 1600, 1669; quindi a seguire nel 1752, 1765, 1796 e successivamente per tutto il corso dell’ottocento fino a i giorni nostri.
Dunque la fabbrica, che è sicuramente precedente alla prima soglia storica documentata, ha una lunghissima storia ed è databile, con molta certezza, realizzata in epoca medioevale.
Il progetto di recupero di una piccola ma importante porzione del complesso, la torre d’ingresso, è un esempio di possibile approccio al tema, con la finalità di controllare le modalità di intervento a cui l’edificio potrebbe essere sottoposto. Estendendo idealmente il progetto a tutto il complesso fortificato, si avrebbe senza dubbio una più corretta visione delle delicate problematiche statiche, conservative controllando così la possibile proposta di riuso di tutto il recinto fortificato stesso.
Il tema del riuso per edifici di questo carattere è fondamentale per la conservazione dello stesso bene, evitando che il suo abbandono ne causi la probabile incuria, che troppo spesso porta a perdite parziali, o in alcuni casi totali, di beni storico monumentali come questo oggi analizzato.
In particolare, nel caso analizzato, la realizzazione nel secondo novecento di un impianto sportivo per il tennis all’interno del Recinto Fortificato, che oggi può sembrare una scelta infelice, ha garantito la continua manutenzione della struttura senza alterare l’antica struttura. Certo la scelta di rimuovere e localizzare in altro luogo la struttura oggi pare una ipotesi corretta, ma prima della futuribile attuazione andrebbe attentamente valutata la riconversione con servizi culturali per la cittadinanza come ad esempio sale civiche e la sede di un museo locale con sala conferenze, biblioteca e zona di ristoro e coffee bar. Parte delle citate funzioni sono in effetti già presenti ma un progetto generale di sistemazione e rifunzionalizzazione andrebbe analizzato estendendo e completando le attività descritte.
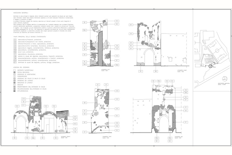
Il progetto redatto, in particolare, ha riguardato la preparazione di un modello tridimensionale digitale, la successiva proiezione di fotopiani sulle superfici modellate, permettendo di analizzare ed indagare su supporti grafici (tavole tematizzate) su tutte le superfici rilevate che compongono l’edifico con lo scopo di analizzare gli interventi di natura conservativa sui paramenti murari. Successivamente lo scopo finale dl progetto è stato di individuare un percorso progettuale per un possibile intervento su una parte del bene per un possibile recupero e rifunzionalizzazione.